Wi-Fi deployment is often underestimated. Many networks still get deployed the same way: someone buys a “powerful” access point, installs it where it’s convenient, and hopes the signal reaches everywhere. Sometimes it does. More often, it doesn’t.
In reality, WiFi deployment is not a single action but a process — a sequence of decisions that determine whether a wireless network will remain stable under real-world conditions: walls, interference, device density, and changing usage patterns. A proper approach to WiFi deployment focuses not only on coverage, but also on reliability, capacity, and long-term maintainability.
What WiFi Deployment Actually Includes
At a high level, WiFi deployment is a sequence of interconnected stages, each addressing a different set of risks. When one of these stages is skipped or oversimplified, problems usually don’t appear immediately — they surface later, under real load.
It starts with understanding the environment. This goes beyond floor plans and square footage. Wall materials, ceiling height, and building layout influence signal behavior, but so do usage patterns: where people gather, how many devices connect at peak times, and what those devices actually do on the network. A space designed for occasional browsing behaves very differently from one hosting video calls, streaming, or point-of-sale systems.
The next step is selecting and placing access points. This is not just about coverage on paper, but about how cells overlap, how devices roam between them, and whether the network can sustain throughput when multiple clients compete for airtime. Poor placement often looks acceptable in small tests but breaks down as soon as real traffic appears.
Configuration comes next. Channel selection, channel width, band usage, SSIDs, and security settings all shape how efficiently the available spectrum is used. In real environments, neighboring networks and background noise make these choices especially critical. A theoretically “fast” configuration can perform worse than a conservative one if it increases interference or contention.
Finally, deployment must be validated with real measurements. Assumptions made during planning need to be checked against reality: signal levels, noise, interference, and actual throughput. Wi-Fi environments are dynamic, and what works at install time may drift as usage and surrounding networks change.
This is the point where specialized tools stop being optional and become essential — turning guesswork into measurable, correctable decisions.
WiFi Deployment Tools: How Different Apps Help
There are specialized applications designed specifically to support WiFi deployment. These tools are not all the same — they differ in purpose, functionality, and the stages of deployment they address. Some focus on analyzing the existing radio environment, others help with planning and predictive modeling, while some are intended for validation and troubleshooting after installation.
To understand how these tools can be used in practice, let’s look at several examples and see how each of them contributes to different aspects of WiFi deployment.
KisMAC — Wi-Fi Scanning and RF Environment Assessment Tool (macOS
KisMAC is an open-source Wi-Fi scanning and monitoring application for macOS that can assist with early-stage WiFi deployment tasks, specifically those related to assessing the existing radio environment.
During WiFi deployment, one of the first practical questions is what is already happening in the air: which networks are present, how crowded the channels are, and whether hidden or non-obvious sources of interference exist. KisMAC helps answer these questions by providing visibility into nearby Wi-Fi networks before any design or installation decisions are made.
KisMAC can detect surrounding Wi-Fi networks, including hidden or non-broadcast SSIDs, and display technical parameters such as BSSID, channel, encryption type, and signal strength. When supported hardware is used, it can also identify connected clients and show their MAC addresses and relative signal levels. This information can be useful when evaluating channel congestion, identifying overlapping networks, and understanding how busy a given RF environment is.
A key capability of KisMAC is passive scanning. Instead of actively probing networks, it can listen to wireless traffic in monitor mode. In a deployment context, this allows engineers to observe real channel usage and RF activity without injecting additional traffic into the environment. KisMAC also supports packet capture and can export data in PCAP format for deeper analysis in external tools such as Wireshark.
KisMAC includes optional GPS integration, allowing detected access points to be associated with geographic coordinates. This feature is primarily useful for outdoor mapping and wardriving scenarios and does not replace indoor site surveys. KisMAC does not work with floor plans, does not generate Wi-Fi heatmaps, and does not perform predictive planning or coverage modeling.
The application also contains legacy Wi-Fi security testing features, such as deauthentication and encryption-related attacks, which require specific hardware and must only be used where legally permitted.
KisMAC is no longer actively developed. The last official release (version 0.3.3) was published in February 2011, and compatibility with modern macOS versions and newer Wi-Fi standards is limited. As a result, KisMAC should be viewed as a legacy RF scanning and environment assessment tool that can support the analysis stage of WiFi deployment, but not the planning or validation stages.
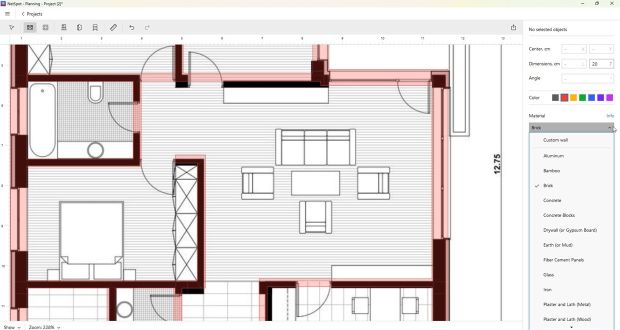
NetSpot — WiFi Planning, Survey, and Deployment Tool
NetSpot is a comprehensive Wi-Fi network analysis and deployment application designed to support multiple stages of Wi-Fi deployment, from initial planning to post-installation verification. Available for macOS, Windows, and Android, it combines scanning, heatmaps, and predictive planning into a single workflow.
NetSpot operates in three main functional modes.
Inspector mode focuses on real-time analysis of the wireless environment.

It discovers nearby networks and displays parameters such as SSID, BSSID, channel, frequency band (2.4 GHz, 5 GHz, and 6 GHz), security type, signal strength, signal-to-noise ratio, and noise level in a convenient table.

Channel overlap information is also displayed in clear graphs, which is also important to consider when designing a network. This mode is typically used in the early stages of deployment to assess interference, channel congestion, and existing RF conditions.
Survey mode is used for on-site inspections. In this mode, users upload or draw a floor plan and collect real-world measurements by walking through the space. NetSpot then generates Wi-Fi heat maps (around 20 different types) that visualize signal strength, signal-to-noise ratio, and noise levels across the entire area.

These heat maps help identify dead zones, uneven coverage, and configuration issues after installation.
Planning Mode enables predictive WiFi design before any hardware is installed. Users define the physical environment by selecting wall materials from a built-in database, including material type and thickness. When standard presets don’t match reality, custom materials and attenuation values can be added manually. This step is critical: accurately modeling real construction materials has a direct impact on prediction accuracy and prevents coverage gaps later.

Access points can be selected from a predefined list or configured manually. Users can experiment with different antenna models, radiation patterns, directionality, and even antenna tilt angles. This makes it possible to shape coverage deliberately, not just increase transmit power.

After placing virtual access points on the floor plan, NetSpot generates predictive heatmaps that estimate expected coverage and signal behavior. These visualizations help determine the required number of access points and their optimal placement before any equipment is purchased or installed.

By combining RF inspection, on-site surveys, and predictive planning, NetSpot supports a full WiFi deployment workflow. It can be used for residential networks, offices, hotels, and more complex environments where planning and validation are equally important.
VisiWave — WiFi Site Survey and Heatmap Visualization Software
VisiWave is a WiFi site survey tool mainly used during the validation stage of WiFi deployment. It helps measure how a deployed network performs in a real environment and visualizes the results on a floor plan.
After access points are installed, VisiWave allows engineers to collect signal measurements across the site and display them as Wi-Fi heatmaps.

These visualizations make it easier to spot coverage gaps, weak-signal areas, and excessive overlap, helping verify whether the deployment meets basic coverage expectations.
VisiWave supports floor plans and offers basic predictive surveys, where walls and obstacles can be defined using a limited set of generic materials.

Access points can be placed in the model, but there is no extensive library of vendor-specific AP models or detailed radio parameters. Predictive results are therefore approximate rather than hardware-accurate.
The range of available heatmaps in VisiWave is relatively narrow, focusing on core coverage metrics rather than a broad set of RF and performance visualizations.

Overall, VisiWave works best as a measurement and documentation tool for validating WiFi deployments, rather than as a full-featured planning or design platform.
Cambium Wi-Fi Designer — Predictive Planning for Cambium Networks
Cambium Wi-Fi Designer is a cloud-based predictive planning tool used during the early design stage of WiFi deployment. It helps network planners estimate coverage and hardware needs before any physical access points are installed.
In deployment workflows, Wi-Fi Designer lets you upload or draw a floor plan, assign basic wall structures, and experiment with different placements of access points. This produces predictive heatmaps that illustrate how signal levels are expected to propagate through the space. These visualizations help estimate where coverage may be weak and how many APs might be needed to achieve the desired performance.
The tool supports selection of different wall materials to represent basic building obstacles and their approximate attenuation effects on radio signals.
This allows planners to account for structural influence on coverage but within a limited set of generic material categories rather than highly detailed construction modeling.

Users can place Cambium Networks access points directly on the floor plan and adjust some RF settings to see how changes affect predicted coverage. Wi-Fi Designer generates a bill of materials listing the chosen AP models and counts for the planned deployment, making it useful for estimating equipment requirements and cost.

However, Cambium Wi-Fi Designer has important boundaries:
- It is tied to Cambium hardware and does not support mixed-vendor environments.
- It does not perform advanced capacity, interference modeling, or predictive validation under real user loads.
- It is not a site survey tool — it does not collect real measurements from a physical space, nor can it generate detailed performance heatmaps based on actual RF samples.
Overall, Wi-Fi Designer is best suited for pre-deployment planning where basic coverage mapping and hardware estimation are needed quickly and without complex software installation. Its browser-based nature makes it accessible and convenient for early design work but limits its use for large-scale, high-density, or highly detailed deployments.
Although all of these applications relate to wireless networking, they serve different purposes within a WiFi deployment workflow. KisMAC focuses on observing the RF environment, NetSpot combines planning, measurement, and validation, VisiWave emphasizes site surveys and visual documentation, and Cambium Wi-Fi Designer targets predictive planning within a specific hardware ecosystem.
Understanding these differences helps choose the right tool for each stage of WiFi deployment and avoids expecting one application to solve problems it was never designed to address.